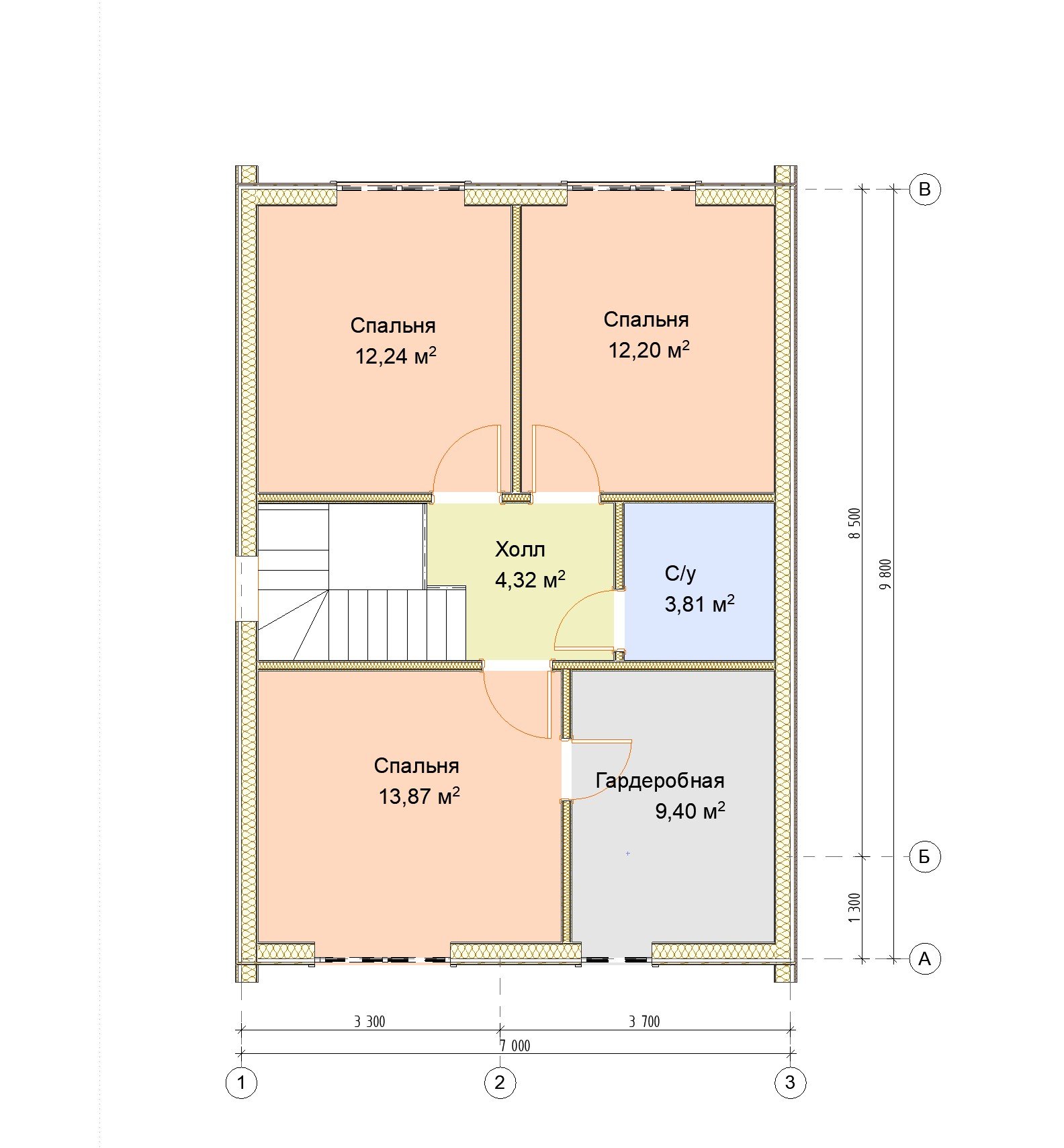
Приступили к строительству дома «Барн» 7,0х9,8м
Приступили к строительству дома Барн в размере 7,0х9,8м по «Индивидуальному проекту» с использованием Эскроу - счета

Место строительства: Московская область, Каширский р-н, мкр. Ожерелье
Скоро новое, уютное жилище встретит своих хозяев!
Комплектация
Фундамент: ж/б сваи
Обвязка: балка наборная 190х140мм из досок сечением 45х190 мм. Лаги в одном уровне с обвязкой на металлических подвесах
Настил пола: первый этаж ЦСП 20мм (подготовка под водяной теплый пол), второй этаж - фанера т.18мм по бруску
Каркас внешних стен: из доски 45х190мм
Утепление: наружные стены 200мм, полы 150мм ЭППС + водяной теплый пол, потолки т.200мм, перегородки 100мм
Отделка: внутри гипсокартон т.12,5 по ОСП т.9мм, снаружи комбинированная отделка: профлист / металлический сайдинг GL
Окна: пластиковые двухкамерные стеклопакеты, профиль т.70мм, внешняя ламинация
Двери: входная металлическая - Заказчика
Кровля: Профнастил
Крыльцо (терраса): согласно проекту
Подшив свесов кровли и террас: металлический сайдинг GL
Потолок: высота первого этажа 2700мм, второго 1500/3800мм
Утеплитель: минеральные плиты (или аналоги). Полы - ЭППС, потолки – Эковата.
Каркас дома: камерной сушки
Коммуникации: скрытая электрика, фановая труба, вентиляция под ГАЗ, вентиляция из кухни и с/у, отопление с водяным теплым полом, ХВС/ГВС, водоподготовка, канализация.


